GALLERY
PROPERTY DETAIL
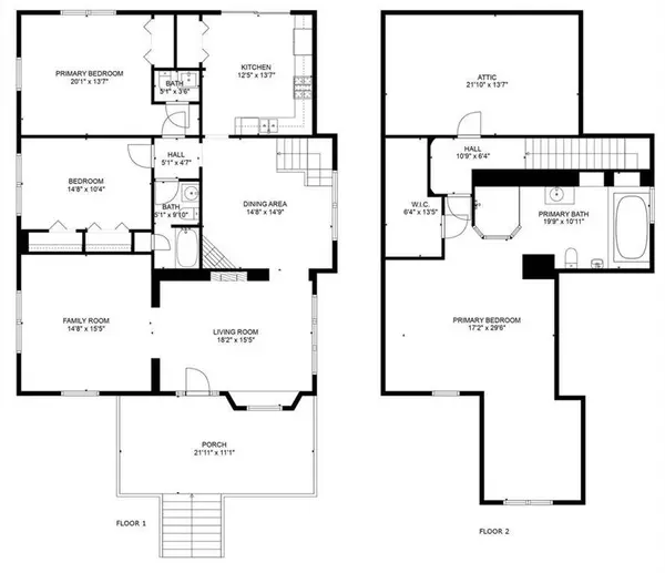
Key Details
Sold Price $800,000
Property Type Single Family Home
Sub Type Single Family Residence
Listing Status Sold
Purchase Type For Sale
Square Footage 2, 689 sqft
Price per Sqft $297
Subdivision Candler Park
MLS Listing ID 7577867
Style Bungalow, Craftsman
Bedrooms 3
Full Baths 2
Half Baths 1
Year Built 1925
Annual Tax Amount $2,861
Tax Year 2024
Lot Size 6,969 Sqft
Property Sub-Type Single Family Residence
Location
State GA
County Dekalb
Area Candler Park
Rooms
Other Rooms Shed(s)
Dining Room Seats 12+, Separate Dining Room
Kitchen Cabinets Stain, Stone Counters
Building
Lot Description Back Yard
Story One and One Half
Foundation Combination, Pillar/Post/Pier
Sewer Public Sewer
Water Public
Structure Type HardiPlank Type
Interior
Heating Central
Cooling Ceiling Fan(s), Central Air
Flooring Hardwood
Fireplaces Number 2
Fireplaces Type Decorative
Equipment None
Laundry Main Level
Exterior
Exterior Feature Private Yard, Rain Gutters
Parking Features Driveway
Fence None
Pool None
Community Features Near Public Transport, Playground, Restaurant, Sidewalks, Street Lights, Tennis Court(s)
Utilities Available Cable Available, Electricity Available, Natural Gas Available, Sewer Available
Waterfront Description None
View Y/N Yes
View Other
Roof Type Shingle
Schools
Elementary Schools Mary Lin
Middle Schools David T Howard
High Schools Midtown
CONTACT









